Predaj trojizbový byt Banská Bystrica Iliaš NOVOSTAVBA EXKLUZÍVNE HALO REALITY

 

Fotogaléria nehnuteľnosti

Popis nehnuteľnosti

Hľadáte bývanie, kde sa snúbi komfort, pokoj a moderný štýl?
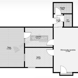
Predstavujeme vám krásny 3-izbový byt v novostavbe, ktorý vás osloví svojím štýlom, praktickým riešením a výnimočnou atmosférou. Nachádza sa v obľúbenej mestskej časti Iliaš, len pár minút od centra Banskej Bystrice.DISPOZÍCIA BYTU: • vstupná chodba s priestorom na úložné riešenia
• otvorená denná zóna – priestranná obývačka s kuchyňou a francúzskym balkónom, orientovaná na sever
• dve nepriechodné izby – spálňa a pracovňa/detská izba, orientované na juh
• z pracovne priamy výstup na terasu (22 m²) – ideálne miesto pre relax či letné posedenia
• kúpeľňa so sprchovým kútom a priestorom na práčku
• samostatná toaleta s umývadlomSTAV NEHNUTEĽNOSTI:Byt sa nachádza na 1. poschodí z 2 v kvalitnej tehlovej novostavbe, ktorá bola skolaudovaná v roku 2020. Je vo výbornom technickom stave – plastové okná, plávajúce podlahy, moderná dlažba, kvalitné bezpečnostné vstupné dvere a štýlové interiérové dvere.
Vykurovanie je riešené elektrickým podlahovým kúrením s termostatmi v každej miestnosti, čo zabezpečuje komfortnú a úspornú reguláciu teploty. Ohrev teplej úžitkovej vody (TÚV) je zabezpečený tepelným čerpadlom. V každej izbe je nainštalovaná rekuperácia, ktorá zaisťuje neustály prísun čerstvého vzduchu a zlepšuje energetickú efektivitu bývania.
Kuchynská linka je vybavená vstavanými spotrebičmi: elektrická rúra, indukčná varná doska a digestor.
Byt sa predáva kompletne zariadený a je pripravený na okamžité nasťahovanie – bez potreby ďalších investícií.BYTOVÝ DOM: • tehlová novostavba so zateplením, skolaudovaná v roku 2020
• len 10 bytových jednotiek – komorné a pokojné bývanie
• uzavretý spoločný dvor so zeleňou a priestorom na oddych
• spoločný odkladací priestor na prízemí
• vlastné parkovacie miesto vo dvore VÝHODY: • novostavba – moderné technické riešenia
• podlahové kúrenie + tepelné čerpadlo + rekuperácia
• priestranná terasa (22 m²)
• vlastné parkovacie miesto priamo vo dvore (v cene nehnuteľnosti)
• kompletne zariadený byt – pripravený na nasťahovanie
• kvalitné vstavané spotrebiče v kuchyni
• tichá lokalita s rýchlou dostupnosťou do centra mestaMESAČNÉ NÁKLADY:Pre 2 osoby cca 250 EUR (vrátane energií).LOKALITA:Iliaš je obľúbená časť Banskej Bystrice, známa svojím pokojným prostredím, prírodou a rýchlou dostupnosťou do centra, buď MHD, alebo autom (cca 10 minút). Príroda na dosah – ideálne na cykloturistiku, prechádzky či aktívny oddych.NÁZOR MAKLÉRA:Tento byt ponúka dokonalú rovnováhu medzi mestským komfortom a pokojom prírody. Je ideálny pre mladé rodiny, páry či jednotlivcov, ktorí hľadajú kvalitné, energeticky úsporné bývanie v novostavbe bez ďalších investícií. Bonusom je výnimočná terasa a uzavretý dvor – výnimočné benefity, ktoré dnes nie sú samozrejmosťou.
"„Moderné bývanie s dotykom prírody – stačí sa len nasťahovať.“"

Dodatočné informácie

  • Číslo ponuky ASI-168-131113
  • Dátum aktualizácie 05.10.2025 17:55
  • Ohodnoť inzerát
  • Skóre 1 / 3
  • Posledné hodnotenie 05.10.2025 17:55