PREDAJ 1 izbový byt Liptovský Mikuláš

 

Fotogaléria nehnuteľnosti

Popis nehnuteľnosti

NA PREDAJ 1 izbový byt v historickej budove centra mesta Liptovský Mikuláš.
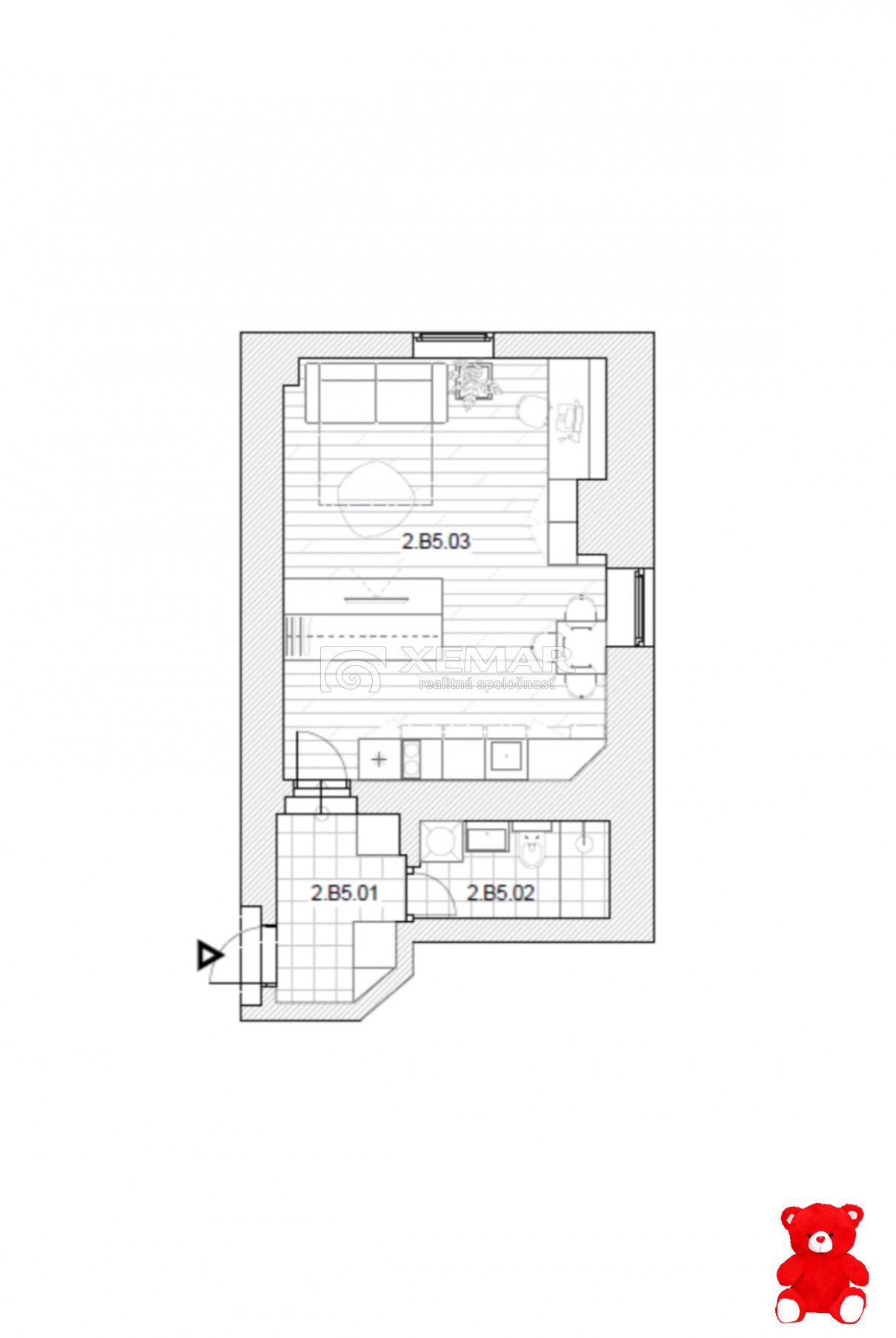
POPIS BYT č.5
Nehnuteľnosť disponuje celkovou rozlohou 35,89m2, nachádza sa na 1. vyvýšenom podlaží (pocitovo 2NP), v historickej budove Aurela Stodolu.
Byt je vyhotovený v štandarde, kompletne vybavený - podlahy, kuchyňa, murovaná zariadená kúpeľňa. V byte je možné vytvoriť priečku na oddelené spanie, prípadne využitie priestoru v štýle mezanínu, vzhľadom na vysoké stropy. Jedná sa o dom s bohatou históriou, v dome sa narodil známy vedec Aurel Stodola. Na prednej časti viladomu je umiestnená pamätná tabuľa venovaná Aurelovi Stodolovi. Bytový dom ktorý pôvodne slúžil ako honosné sídlo rodiny Stodolovcov prešiel v posledných rokoch komplexnou rekonštrukciou ktorej súčasťou bola napríklad výmena podláh v spoločných častiach, rekonštrukcia dobového schodiska, inštalácia honosného lustra nad schodiskom, výmena strešnej krytiny, rozvodov kúrenia a podobne. Z technického vybavenia sa v dome vybudovala nová prípojka teplovodu z centrálnej mestskej kotolne.
PONUKA BYTOV
Každý byt je samostatne napojený na centrálnu dodávku tepla od mestskej kotolne. Všetky byty majú vlastný bojler na ohrev teplej vody.Väčšina bytov má vysoké stropy, ktoré pôsobia honosne a zároveň je ich časť možné využiť ako ďalšie mezanínové poschodie (napr. nočná zóna s posteľou, miesto pre deti na hranie a pod.)Niektoré byty majú veľké miestnosti dané historickým pôvodom stavby, ktoré je možné rozdeliť na viac častí prípadne samostatných izieb a tak ich prispôsobiť svojím aktuálnym potrebám.Byty sa ponúkajú v rôznych štandardoch, od holo bytov, kde môžete realizovať svoje predstavy od základov, cez byty so štandardným vybavením (podlahy, kuchyňa, murovaná zariadená kúpeľňa).
LOKALITA
Bytový dom sa nachádza v centre Liptovského Mikuláša s kompletnou nadštandardnou občianskou vybavenosťou vzdialenej pár minút pešej chôdze od bytového domu. Bezproblémové parkovanie je dostupné na parkoviskách v blízkosti budovy.
CENA NEHNUTEĽNOSTI JE 82.000,- EUR.
V prípade záujmu ma neváhajte kontaktovať:
kristina.jurgova@xemar.sk / 0948 385 289.

Dodatočné informácie

  • Číslo ponuky ASI-124-132160
  • Dátum aktualizácie 11.10.2025 16:13
  • Ohodnoť inzerát
  • Skóre 1 / 3
  • Posledné hodnotenie 11.10.2025 16:13