Predaj trojizbový byt Poltár EXKLUZÍVNE HALO REALITY

 

Fotogaléria nehnuteľnosti

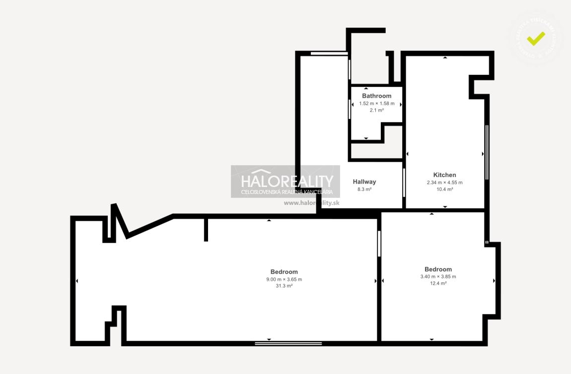
Popis nehnuteľnosti

Ponúkame na trojizbový byt s rozlohou 66m².
Nachádza sa druhom poschodí z dvoch bez výťahu a s loggiou.
K bytu prislúcha pivnica v suteréne z vchodom z boku bytového domu.
Byt má vlastné plynové kúrenie.
Plastové okná v celom byte.
Orientácie bytu je východ -západ.DISPOZÍCIA:
Do bytu sa vchádza do vstupnej chodby v tvare L.
Ihneď za vchodovými dverami na ľavo je samostatné WC, následne je kúpeľňa.
Za bytovým jadrom na ľavo je vstup do priestrannej kuchyne s orientáciou na východ.
Oproti vstupným dverám je vstup do obývacej miestnosti s orientáciou na juh.
Z obývacej miestnosti doľava je obytná miestnosť s orientáciou na východ.
A z obývacej miestnosti doprava je tretia miestnosť s loggiou.
Orientácia miestnosti je západ.STAV NEHNUTEĽNOSTI:Bytové jadro je v pôvodnom stave umakart.
Kuchynská linka zánovná.
Podlahy pôvodné.VÝHODY:Veľkou výhodou je pôvodný stav, možnosť rekonštrukcie podľa vlastných predstav.
Vlastné kúrenie, úspora.
Nádherný výhľad na mesto z loggie.
Kľudne miesto v priamom susedstve z lesom.MESAČNÉ NÁKLADY:Náklady na elektrinu a plyn podľa spotreby plus fond oprav.LOKALITA:Pokojná na okraji mesta lemovaná lesom.
Vhodné pre klientov, ktorý preferujú kľud a prechádzky v prírode.
Dostatok parkovacích miest a zelene.NÁZOR MAKLÉRA:
Šikovný byt s nádherným výhľadom.

Dodatočné informácie

  • Číslo ponuky ASI-168-132814
  • Dátum aktualizácie 10.03.2026 22:58
  • Ohodnoť inzerát
  • Skóre 1 / 5
  • Posledné hodnotenie 10.03.2026 22:58